Cottage / House in Urla, Turkey
The houses are located in the Urla district of Izmir. Urla is one of the city’s most sought-after areas, known for its gastronomy, arts, and attracting high-quality residents. Famous for its Blue Flag beaches, Urla is a key tourist destination in Izmir. This makes it an ideal location both for buying a home and for investment purposes.
Houses for sale in Izmir are just 200 meters from the sea and beach, 750 meters from supermarkets, 1 km from the famous seaside fish and meat restaurants, 7.5 km from the center of Urla, 10 km from Izmir’s popular waterfront fish restaurants and marinas, and 38 km from Adnan Menderes Airport.
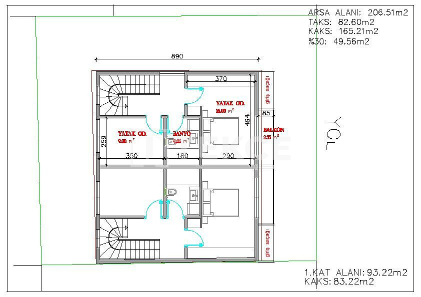
Two semi-detached villas are built on a 206 m² plot. Each villa offers 80 m² of net living space, a private garden, and open parking facilities.
The houses feature high ceilings, open-plan kitchens, spacious living rooms, bedrooms, private gardens, and rooftop terraces. They also include additional amenities suitable for year-round living, such as storage rooms, pantries, triple built-in appliance sets, shower cabins, thermal insulation, and aluminum-framed windows.
ADB-00156
| Specifications | |
|---|---|
| Property type: | cottage / house |
| Property condition: | new build |
| Total rooms: | 3 |
| Number of storeys: | 3 |
| Year of construction / renovation: | 2026 |
| Land area: | 103 sq. m |
| Features: | garden (private), pool (private), parking (private), terrace / balcony |
ID: 226482 29.10.2025
- 95 sq. m
- 2 bedrooms
- 2 bathrooms








